Sanierungsobjekt – 30er Jahre Stadtvilla in der Gartenstadt Frohnau

  • €470.000
Kasinoweg 5, 13465 Berlin, Deutschland
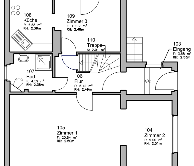
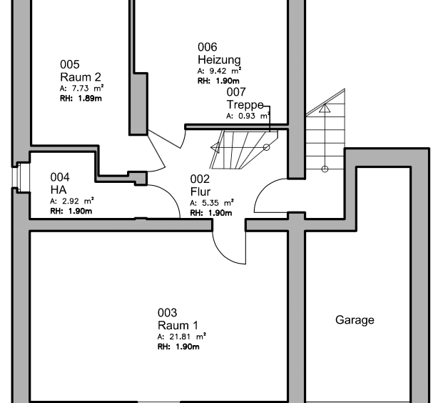
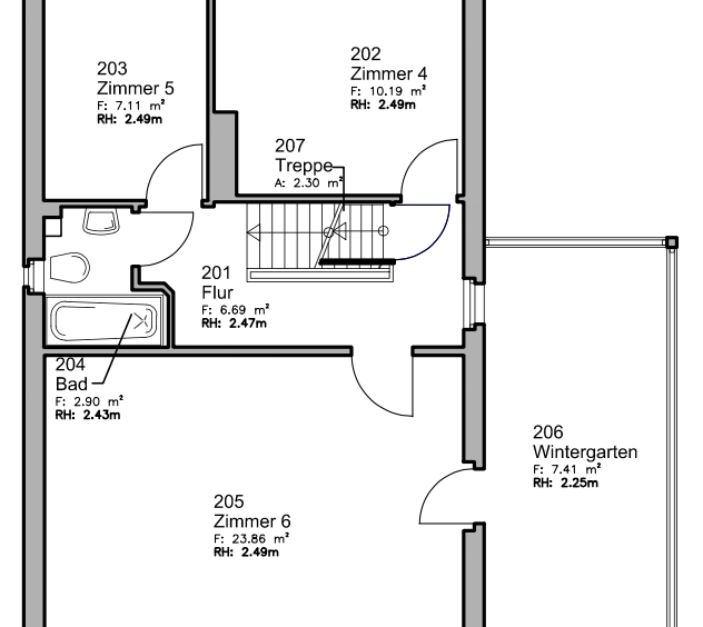
03_Hauseingang 05_Treppenhaus EG 06_Wohnzimmer EG 07_Anbau EG 08_Duschbad EG 10_Küche EG 09_Essbereich EG 11_Treppenhaus OG 12_Schlafzimmer OG 13_Wintergarten 14_Zimmer OG 15_Wannenbad OG 16_Gartenansicht 17_Garten 19_Dachstuhl 18_Gartenschuppen 20_Heizungsraum 21_Waschraum Grundriss KG Grundriss EG Grundriss OG
  • Wohnung
  • Immobilientyp
  • 4.0
  • Zimmer
  • 2
  • Bäder
  • 120
  • 1933
  • Baujahr
  • Kasino_NLPeter
  • ID der Immobilie
Zu Verkaufen
Sanierungsobjekt – 30er Jahre Stadtvilla in der Gartenstadt Frohnau
Kasinoweg 5, 13465 Berlin, Deutschland
  • €470.000

Beschreibung

Dieses freistehende Haus aus dem Jahr 1933 im Stil einer typischen 30er-Jahre-Stadtvilla liegt auf einem 800 m² großen Grundstück in der begehrten und geschützten Gartenstadt Frohnau. Der 1939 errichtete Anbau mit darüberliegendem Balkon wurde 1955 zu einem wintergartenähnlichen Raum ergänzt und verleiht dem Haus seinen charakteristischen Charme.

Das Gebäude erstreckt sich über zwei Etagen plus Dachstuhl und ist voll unterkellert. Der Keller bietet einen großen Abstellraum sowie den Heizungsraum mit Öl-Zentralheizung und Warmwasseraufbereitung.
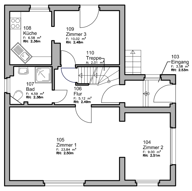
Im Erdgeschoss befinden sich das Wohnzimmer mit Durchbruch zu einem separaten Raum, eine Küche mit angrenzendem Essbereich und direktem Zugang zur Gartenterrasse sowie ein Duschbad. Im Obergeschoss liegt das große Schlafzimmer mit angeschlossenem Wintergarten, ein weiteres Zimmer und ein kleines Wannenbad. Von außen zugänglich ist eine Garage für ein Fahrzeug.

Das Haus ist insgesamt stark sanierungsbedürftig. Abgesehen von den beiden großzügigen Räumen sind die übrigen Zimmer eher klein gehalten, was den typischen Charakter der Zeit widerspiegelt. Der hintere Gartenbereich lädt zu entspannten Stunden im Grünen ein.
Dieses Haus eignet sich ideal für Liebhaber historischer Architektur, die ein Objekt mit individuellen Gestaltungsmöglichkeiten suchen und den Charme der 30er Jahre mit modernem Wohnkomfort verbinden möchten.

Der Bodenrichtwert 2025 beträgt 750 EUR/m².

Achtung: Das Haus liegt im Geltungsbereich der Gartenstadt Frohnau gemäß § 172 BauGB, wodurch besondere städtebauliche Vorgaben gelten. Bauliche Änderungen müssen den Bestimmungen der Gartenstadt entsprechen, um das einheitliche Erscheinungsbild und den historischen Charakter des Viertels zu erhalten. Für Eigentümer bedeutet dies, dass Gestaltungsmaßnahmen und Erweiterungen genehmigungspflichtig sind, zugleich aber ein hohes Maß an Planungssicherheit und Werterhalt gewährleistet wird. Bei Fragen hierzu stehen wir Ihnen gern zur Verfügung.

Der exklusive Ortsteil Frohnau im Bezirk Reinickendorf zählt zu den begehrtesten Wohnlagen im Norden Berlins. Als traditionsreiche Gartenstadt vereint Frohnau ein ruhiges, grünes Ambiente mit den Vorteilen einer gut angebundenen Hauptstadtlage. Hier genießen Bewohner eine außergewöhnlich hohe Lebensqualität – ideal für alle, die eine naturnahe, repräsentative und zugleich komfortable Wohnumgebung schätzen.

Eingebettet in ausgedehnte Wald- und Grünflächen bietet Frohnau ein Wohngefühl, das in Berlin seinesgleichen sucht. Ob entspannte Spaziergänge durch die umliegenden Waldwege, eine Radtour Richtung Havel oder eine kleine Auszeit an den zahlreichen Seen und Naturbiotopen der Umgebung – die Natur beginnt hier unmittelbar vor der Haustür. Das Objekt liegt in einer gepflegten Nebenstraße, geprägt von großzügigen Grundstücken und hochwertiger Einfamilienhaus- und Villenbebauung.

Die charakteristische Gartenstadtarchitektur, der repräsentative Zeltinger Platz mit Kirche und Brunnen sowie das harmonische Ortsbild verleihen Frohnau seinen unverwechselbaren Charakter. Rund um den Ludolfinger- und Zeltinger Platz finden sich kleinere Geschäfte, Bäckereien, Apotheken, Feinkostläden sowie ein EDEKA-Markt – ideal zur Deckung des täglichen Bedarfs. Große Einkaufszentren oder ein breites Einzelhandelsangebot sind hier bewusst nicht vorhanden; stattdessen dominiert ein ruhiger, gepflegter Kiez mit persönlicher Note.

Für Pendler bietet Frohnau eine ausgezeichnete Verkehrsanbindung: Der S-Bahnhof Frohnau (S1) ist schnell erreicht und verbindet den Ortsteil direkt und zuverlässig mit der Berliner Innenstadt. Mehrere Buslinien ergänzen das Angebot. Über die nahe gelegene A111 bestehen optimale Anschlüsse sowohl Richtung Mitte als auch ins Berliner Umland. Die Fahrzeit ins Stadtzentrum beträgt mit dem Auto etwa 30–35 Minuten.

+ Freistehendes Haus im Stil einer 30er-Jahre-Stadtvilla
+ Baujahr 1933, Anbau und Balkon 1939, Wintergarten-Erweiterung 1955
+ Voll unterkellert
+ 800 m² Grundstück in der Gartenstadt Frohnau
+ Garage für 1 Fahrzeug
+ Erdgeschoss: großes geteiltes Wohnzimmer, Küche mit Essbereich, Terrassenzugang, Duschbad
+ Obergeschoss: großes Schlafzimmer mit Wintergarten, weiteres Zimmer, kleines Wannenbad
+ Dachgeschoss
+ Keller: großer Abstellraum, Heizungsraum
+ Zimmergröße variabel – nur Wohn- und Hauptschlafzimmer großzügig, übrige Räume eher klein
+ Öl-Zentralheizung mit Warmwasseraufbereitung
+ Sanierungsbedürftig – Innenausbau nach Baujahr, hoher Modernisierungsspielraum
+ Bodenrichtwert 2025 beträgt 750 EUR/m²
+ Liegt im Geltungsbereich der Gartenstadt Frohnau gemäß § 172 BauGB, Umbauten und Rückbauten unterliegen städtebaulichen Vorgaben

WICHTIG! Der Verkauf erfolgt über einen Nachlasspfleger – der Kaufvertrag wie auch eine eventuelle Finanzierung bzw. die Grundschuldbestellung müssen somit nach Vertragsabschluss durch das Nachlassgericht genehmigt werden. Bitte beachten Sie dies bei eventuellen Gesprächen mit Hausbaufirmen.

Energieeffizienz

  • Primärenergieträger: Öl
  • Energieeffizienzklasse: H
  • Energieausweis-Jahrgang: nicht angegeben
  • Energieausweis-Gebäudeart: Wohngebäude

Dokumente zur Immobilie

AGB Haus & Home Immobilien.pdf
Allg. Datenschutzhinweise H&H.pdf
  • Adresse Kasinoweg 5
  • Stadt Berlin
  • Postleitzahl 13465
  • Land Deutschland

Details

Aktualisiert am Dezember 30, 2025 beim 5:41 pm
  • ID der Immobilie: Kasino_NLPeter
  • Preis: €470.000
  • Größe der Immobile: 120 m²
  • Grundstücksfläche: 800 m²
  • Zimmer: 4.0
  • Bäder: 2
  • Größe der Garage: 1 Autostellplatz
  • Baujahr: 1933
  • Immobilientyp: Wohnung

Zusätzliche Details

  • Heizungsart: Zentralheizung
  • Anzahl Etagen: 2,0
  • Courtage: 3,57 % inkl. USt.
  • Hinweis zur Courtage: Bei dem Erwerb dieser Immobilie fallen 3,57 % Käuferprovision inkl. USt. auf den Kaufpreis an. Haus und Home Immobilien hat einen provisionspflichtigen Maklervertrag mit dem Verkäufer in gleicher Höhe abgeschlossen.
  • Anzahl Garagenstellplätze: 1
  • Nutzfläche: 37,81 m²
  • Zimmer insgesamt: 4.0
  • Anzahl Stellplätze: 1
  • Befeuerung: Öl
  • Badausstattung: Badewanne, Fenster im Badezimmer
  • Küche: Einbauküche
  • Stellplatzart: Garage
  • Distanz zum Flughafen: 46,5 km
  • Distanz zum Fernbahnhof: 0,5 km
  • Distanz zu Bushaltestelle: 0,4 km
  • Immobilie ist verfügbar ab: nach Vereinbarung

Ähnliche Auflistungen

Vergleiche Einträge

Vergleichen