Repräsentatives Eckgrundstück mit Zukunftsperspektive – als Ein- oder Zweifamilienhaus

  • €698.000
Rundlingsteig 9, 13467 Berlin, Deutschland
EG Flur_1 EG Flur_2 EG Zimmer 1 EG Zimmer 2 EG Zimmer 3 EG Küche EG WC OG Flur_1 OG Flur_2 OG Zimmer 4_1 OG Zimmer 4_2 OG Zimmer 5 OG Küche OG Bad UG Garage UG Heizung UG Raum Garten Grundriss KG Grundriss EG Grundriss OG
  • Einfamilienhaus
  • Immobilientyp
  • 6.0
  • Zimmer
  • 2
  • Bäder
  • 178
  • 1965
  • Baujahr
  • Rundlingsteig_NL
  • ID der Immobilie
Zu Verkaufen
Repräsentatives Eckgrundstück mit Zukunftsperspektive – als Ein- oder Zweifamilienhaus
Rundlingsteig 9, 13467 Berlin, Deutschland
  • €698.000

Beschreibung

Das freistehende Einfamilienhaus auf einem repräsentativen Eckgrundstück bietet eine Kombination aus ruhiger Wohnlage, großzügigem Raumangebot und vielseitigem Nutzungspotenzial. Das 1965 errichtete und später erweiterte Wohnhaus überzeugt durch seine klare Architektur mit Flachdach, ein gepflegtes äußeres Erscheinungsbild sowie eine Struktur, die perfekt für Familien, Mehrgenerationenwohnen oder die Umwandlung in ein Zweifamilienhaus geeignet ist.

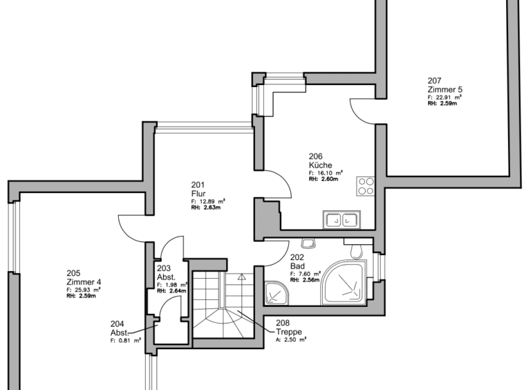
Das Erdgeschoss verfügt über einen großzügigen Eingangsbereich, von dem aus das Wohn- sowie Esszimmer aus erreichbar sind, hinter dem das ehemalige Schlafzimmer liegt. Die Küche und das Gäste-WC sind direkt vom Eingangsbereich aus erreichbar.

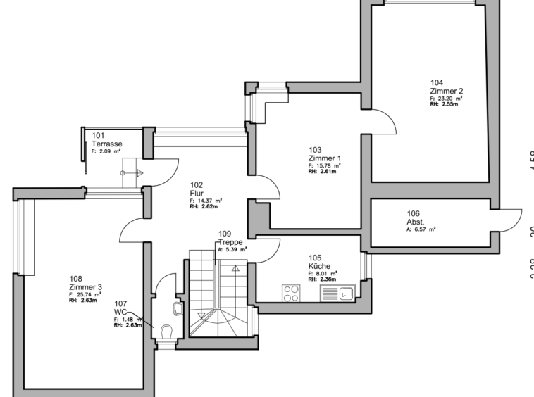
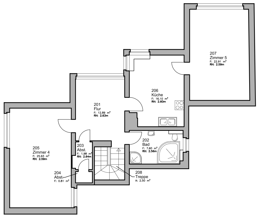
Über das Treppenhaus gelangt man in das Obergeschoss von dem aus das Schlafzimmer erreicht wird. Auf der anderen Seite des Flurs befinden sich der Koch- und Essbereich durch den man in das angrenzende Wohnzimmer gelangt. Der großzügig geschnittene Flur wurde bisher als Büro genutzt. Ein voll ausgestattetes Badezimmer mit Dusche und Eckbadewanne sorgen für viel Komfort und ein separater Abstellraum sorgt für Ordnung und zusätzlichen Stauraum.

Die Raumgrößen sind gut ausgewogen und alle Räume verfügen über große Fenster, die viel Tageslicht ins Innere leiten. Insgesamt bietet die Immobilie eine durchdachte Raumaufteilung mit klarer Trennung von Wohn-, Schlaf- und Funktionsbereichen und eignet sich ideal für unterschiedliche Lebenskonzepte.

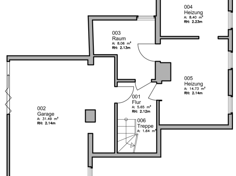
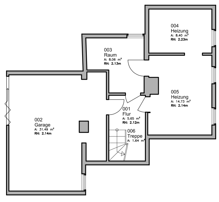
Das Gebäude ist teilweise unterkellert und bietet damit zusätzlichen Stauraum für Heizungs- und Waschraum sowie ausreichende Abstellflächen und einen Vorratsraum. Besonders praktisch ist die elektrisch verschließbare Garage, die bequemes und sicheres Parken gewährleistet sowie einen Werkstattbereich beinhaltet. Ein vom Garten zugänglicher Schuppen im Haus bietet ausreichen Unterbringungsmöglichkeiten für Gartengeräte. Der großzügige Garten rundet das Gesamtbild ab: ein grüner Rückzugsort mit viel Platz zum Entspannen, Spielen oder Gärtnern.

Während das Haus von außen einen sehr gepflegten Eindruck macht, entspricht die Innenausstattung weitgehend dem Baujahr und bietet daher eine hervorragende Grundlage für eine teils auch notwendige Sanierung nach eigenen Vorstellungen, so müssen unter anderem die Heizkörper, die Zu- und Abwasserleitungen und die Elektrik erneuert werden. So entsteht die besondere Chance, ein solides Haus mit guter Bausubstanz ganz individuell zu gestalten. Da beide Etagen nahezu autark gestaltet sind, bietet sich eine hervorragende Grundlage diese zu zwei separaten Wohneinheiten umzugestalten.

Mit seinem großzügigen Eckgrundstück, der ruhigen Wohnlage in Berlin-Hermsdorf und dem Ausbaupotenzial zu einem Zweifamilienhaus stellt diese Immobilie eine äußerst attraktive Gelegenheit dar – sowohl für Eigennutzer als auch für Kapitalanleger.

Der charmante Ortsteil Hermsdorf im Bezirk Reinickendorf verbindet idyllisches, fast dörfliches Flair mit den Vorzügen einer hervorragend angebundenen Hauptstadtlage. Hier genießen Bewohner eine außergewöhnlich hohe Lebensqualität – ideal für alle, die Ruhe, Natur und ein gepflegtes Wohnumfeld schätzen.

Umgeben vom malerischen Tegeler Fließ und dem weitläufigen Tegeler Forst bietet Hermsdorf eine Wohnlage, die ihresgleichen sucht. Ob erholsame Spaziergänge entlang der naturbelassenen Fließlandschaften, eine sommerliches Badeerlebnis im Lübarser Strandbad, eine kleine Auszeit am beliebten Hermsdorfer See – die Natur beginnt hier direkt vor der Haustür.

Das Stadtbild ist geprägt von eleganten Gründerzeitvillen, gepflegten Einfamilienhäusern und charmanten Altbauten. Der historische Dorfkern mit der alten Dorfkirche am Ende der Straße verleiht dem Ortsteil zusätzlich einen unverwechselbaren Charakter und unterstreicht seine hohe Wohnattraktivität.

Den täglichen Bedarf deckt die lebendige Heinsestraße, die mit vielfältigen Geschäften, Cafés und Restaurants zum Bummeln einlädt. Entlang der Berliner Straße und des Oraniendamms wird das Angebot ergänzt. Für Pendler ist die Lage ideal: Der S-Bahnhof Hermsdorf (S1) verbindet den Ortsteil direkt und zügig mit der Berliner Innenstadt. Die Buslinie 220 ist fußläufig ebenfalls erreichbar. Die schnelle Anbindung an die Autobahn A 100 und A111, Anschlussstelle „Waidmannsluster Damm/Hermsdorfer Damm“ gewährleistet die Erreichbarkeit des Stadtzentrums in ca. 30 Minuten mit dem Auto.

+ Freistehendes Einfamilienhaus auf großem Eckgrundstück
+ Baujahr 1965, Anbau von 1977
+ Flachdach
+ Fast vollständig unterkellert
+ Elektrisch verschließbare Garage
+ Separat zugänglicher Gartenschuppen
+ Gepflegter Garten mit Terrasse
+ Gäste-WC im Erdgeschoss
+ Voll ausgestattetes Badezimmer im Obergeschoss
+ Je eine Küche pro Etage
+ Je ein Wohn- und Schlafzimmer pro Etage
+ Ideal zur Nutzung als Zwei-Familien-Haus oder Mehrgenerationenwohnen
+ Großzügige Fensterflächen für viel Tageslicht
+ Außen sehr gepflegt
+ Ruhige, grüne Wohnlage in Hermsdorf
+ Nähe zu Einkaufsmöglichkeiten, öffentlichen Verkehrsmitteln und Natur
+ zum Teil sanierungsbedürftig (insbesondere Haustechnik)
+ Viel Potenzial für individuelle Modernisierung oder Umbau

+ We provide full service in english as well!

++ Kontaktieren Sie uns gern für weitere Informationen oder einen Besichtigungstermin.

+++ Als Immobilienmakler sind wir nach § 2 Abs. 1 Nr. 14 und § 11 Abs. 1, 2 Geldwäschegesetz (GwG) dazu verpflichtet, bei der ernsthaften Anbahnung eines Immobilienkaufvertrags die Identität beider Vertragspartners (Käufer und Verkäufer) festzustellen und zu überprüfen. Hierzu ist es bei natürlichen Personen erforderlich, dass wir nach § 11 Abs. 4 GwG die relevanten Daten vom Personalausweis aufnehmen und eine Kopie anfertigen. Bei juristischen Personen benötigen wir eine Kopie des Handelsregisterauszugs, aus welchem der wirtschaftlich Berechtigte hervorgeht. Das GwG sieht vor, dass der Makler die Kopien bzw. Unterlagen fünf Jahre aufbewahrt. Als unser Vertragspartner haben Sie auch eine Mitwirkungspflicht nach § 11 Abs. 6 GwG.

++++ Wir weisen darauf hin, dass die von uns zur Verfügung gestellten Objektinformationen, Unterlagen, etc. vom Verkäufer stammen. Eine Haftung für die Vollständigkeit oder Richtigkeit der Angaben können wir daher nicht übernehmen. Gerne unterstützen wir unseren Kunden dabei, die darin enthaltenen Objektinformationen und Angaben auf ihre Richtigkeit hin zu überprüfen. Alle Immobilienangebote sind freibleibend und vorbehaltlich Irrtümer, Zwischenverkauf- oder sonstiger Zwischenverwertung und Änderungen.

Energieeffizienz

  • Energieausweis-Art: Bedarf
  • Energieausweis gültig bis: 25.11.2035
  • Endenergiebedarf: 334,70 kWh/(m²*a)
  • Primärenergieträger: Öl
  • Energieeffizienzklasse: H
  • Energieausweis-Ausstellungsdatum: 25.11.2025
  • Energieausweis-Gebäudeart: Wohngebäude

Dokumente zur Immobilie

AGB Haus & Home Immobilien.pdf
Allg. Datenschutzhinweise H&H.pdf
  • Adresse Rundlingsteig 9
  • Stadt Berlin
  • Postleitzahl 13467
  • Land Deutschland

Details

Aktualisiert am März 25, 2026 beim 11:54 a.m.
  • ID der Immobilie: Rundlingsteig_NL
  • Preis: €698.000
  • Größe der Immobile: 178 m²
  • Grundstücksfläche: 973 m²
  • Zimmer: 6.0
  • Bäder: 2
  • Größe der Garage: 1 Autostellplatz
  • Baujahr: 1965
  • Immobilientyp: Einfamilienhaus

Zusätzliche Details

  • Heizungsart: Zentralheizung
  • Anzahl Etagen: 2,0
  • Courtage: 3,57 % inkl. USt.
  • Hinweis zur Courtage: Bei dem Erwerb dieser Immobilie fallen 3,57 % Käuferprovision inkl. USt. auf den Kaufpreis an. Haus und Home Immobilien hat einen provisionspflichtigen Maklervertrag mit dem Verkäufer in gleicher Höhe abgeschlossen.
  • Anzahl Garagenstellplätze: 1
  • Nutzfläche: 51,77 m²
  • Balkone: 1
  • Zimmer insgesamt: 6.0
  • Anzahl Stellplätze: 1
  • Gartenfläche: 847,45 m²
  • Befeuerung: Öl
  • Bodenbelag: PVC
  • Badausstattung: Dusche, Badewanne, Fenster im Badezimmer
  • Stellplatzart: Garage
  • Zustand: sanierungsbedürftig
  • Distanz zum Flughafen: 44,5 km
  • Distanz zum Fernbahnhof: 1,6 km
  • Distanz zu Bushaltestelle: 0,2 km
  • Immobilie ist verfügbar ab: nach Vereinbarung

Ähnliche Auflistungen

Vergleiche Einträge

Vergleichen